Welcome to ADP Drafting & Design

Custom Home Design & Architectural Drafting in Lethbridge - with 22 years of expertise.   From concept to construction- ready plans, we turn your ideas into functional, beautiful spaces.  At ADP Drafting & Design, we are dedicated to transforming your vision into reality. 

Services

Customized Architectural Drafting

Our customized architectural drafting service provides detailed plans and drawings to bring your design concepts to life with precision and accuracy.

Frequently Asked Questions

What is the typical timeline for a design project?

The timeline for a design project varies depending on the scope and complexity, but we strive to complete projects in a timely manner without compromising quality.

How do you ensure the designs reflect my personal style?

We take the time to understand your personal style and preferences through thorough consultations and design discussions to ensure the final designs truly reflect your unique taste.

Do you work with a specific budget range?

Yes, we are flexible and can work with a variety of budget ranges to accommodate our clients' needs and preferences.

Customer Review

Spotlight: ADP Drafting & Design 

Updated: May 3, 2020

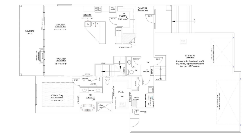
With the expertise of one of Lethbridge's top custom home builders - 5P's Construction and the talented art of ADP Drafting & Design I get to see my idea for a custom suited house come to life. I designed a bungalow with 4 bedrooms, 3 bathrooms, double attached garage and a dream walk-in closet. 

The main living area has vaulted ceilings, a spacious island perfect for food prep and a must-have walk-in pantry. We expanded the back deck to maximize usable outdoor space with covered and uncovered portions. All of the decks (front and rear) have been enclosed for additional storage (with the basement tenants having a great space to keep items not meant to be inside).

Ally Keith


Contact us

Get in touch with us today and let's start creating your dream space together

Location

ADP Drafting & Design
Lethbridge, Alberta, Canada


About us

ADP Drafting & Design is a Custom Home Design Drafting company based in Lethbridge, Alberta. With over two decades of experience, we have built a reputation for delivering exceptional design solutions that combine innovation, functionality, and style. Our team is committed to understanding our clients' needs and bringing their visions to life through thoughtful and creative design. We take pride in our attention to detail and our ability to exceed expectations on every project, big or small.