Create Custom Homes for customers looking for a house that works for them and their lifestyle.  

ADP stands for A Different Perspective. I look at home design with a different perspective because of my years of experience. 
I take into consideration a persons lifestyle as well as needs and wants when designing a custom home. Many people have a custom home designed for them and then after moving in suddenly realize they don’t have enough storage or too much wasted space; the list can go on and on.
I not only understand what many people over look when discussing their needs for a custom home, I also understand the costs related to building a house as well as how to save money on a build.

Create your home your way.

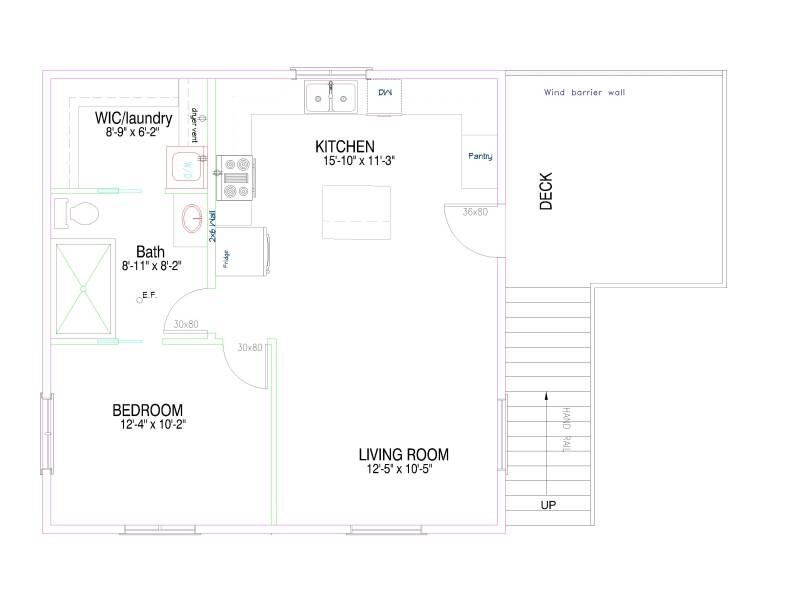
Double Garage With Upper Suite. 

KITCHEN RENOVATIONS

Renovating a Kitchen in an existing home is a great way to increase the value of your home.  New homes have the open concept kitchen that create great sightlines.  This would require a design and drafting of construction drawings for an understanding of what they can have done in their current home.

I sit with my clients and discuss everything from who does the majority of cooking. How many dinner parties or gatherings do they have or want to have.  I ask about their small appliances and what extra storage they want.  I can have custom cabinetry designed for their needs.  If a client does not want the general cabinetry I can design and work with local companies to have their cabinets designed and built to their needs.  

Selection of back splash and counter tops and fixtures can be hard for people to decide on depending on the existing flooring and the existing finishes in the house.  All needs to be considered.  I can help and assist with those choices.

NEW HOME BASEMENT DESIGNS

I have worked with clients who have purchased a house with the basement not completed.  Many builders do not develop the basement to keep the purchase cost within a limit that falls within the average house cost.  I can assist you in creating a space in the basement that works with your needs and within a budget that you can afford.  This will increase the value of your home and give you extra space to enjoy your home.